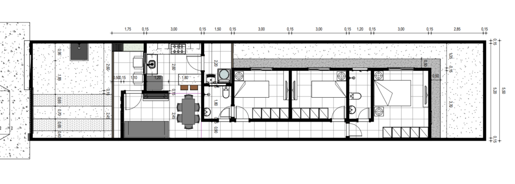
Situada no coração de Itaitinga, zona que está em plena expansão imobiliária, uma ótima opção para morar ou investir, casa com 3 quartos, sendo 1 (uma) suite master, 1 (um) quarto com banheiro reversível e 1 (um) quarto, possuindo 3 banheiros sendo um social, a riqueza de detalhe e arquitetura arrojada nos mostram os aspectos modernos na fachada imponente deste empreendimento pronto para morar.
Galeria de Fotos





Fase da Obra
Já em fase de conclusão, para mais informações, clique em fale conosco que iremos te passar todas as informações necessárias para realizar o seu sonho da sua tão sonhada casa própria!
Obra 98% Concluída










